2025-12-30
2025年4月29日12时20分许,辽宁省辽阳市白塔区三里厨娘饭店发生重大火灾事故,造成22人死亡、3人受伤,直接经济损失2536.39万元。

事故发生后,党中央、国务院高度重视。习近平总书记立即作出重要指示,辽宁辽阳市白塔区一饭店发生火灾造成重大人员伤亡,教训十分深刻!要全力救治受伤人员,妥善做好遇难人员善后及家属安抚等工作,尽快查明原因,依法严肃追责。国务院安全生产委员会对事故查处实行挂牌督办,应急管理部派出由国家消防救援局主要领导带队的工作组迅速赶赴现场,指导应急处置工作。在省外出差途中的时任省委书记郝鹏、省长王新伟立即返程,连夜赶赴火灾事故现场,指导事故善后处置工作。
根据《中华人民共和国安全生产法》《中华人民共和国消防法》《生产安全事故报告和调查处理条例》《辽宁省消防条例》《辽宁省火灾事故责任调查规定》等法律法规文件,4月29日,省政府成立了辽宁辽阳白塔区三里厨娘饭店“4·29”重大火灾事故调查组(以下简称事故调查组),由省委常委、常务副省长王健任组长,副省长王利波任常务副组长,省应急厅、省消防救援总队、省公安厅、省住房城乡建设厅、省商务厅、省市场监管局、省总工会和辽阳市人民政府等单位有关同志参加,同时邀请省检察院派员参加。省纪委监委同步开展追责问责审查调查工作。
事故调查组坚持“科学严谨、依法依规、实事求是、注重实效”和“四不放过”原则,通过现场勘验、查阅资料、调查询问、检验鉴定、视频分析、模拟实验、专家论证等方式,查明了事故经过、发生原因、人员伤亡和直接经济损失等情况,查明了相关生产经营单位及人员的责任,查清了属地党委、政府及相关部门存在的问题和人员的责任,认定了事故性质。同时,认真总结事故教训,提出了事故防范和整改措施建议。
调查认定,辽宁辽阳白塔区三里厨娘饭店“4·29”重大火灾事故是一起因饭店主体责任不落实,违法改造扩建外立面且大量使用以普通塑料为芯材的铝塑板,违规在门外排风道下方检修口内堆放可燃垃圾,顾客随意丢弃烟蒂,外墙保温材料以次充好,消防设施未有效发挥作用,员工初起火灾处置不力,属地有关部门及党委、政府履职不到位而导致的重大生产安全责任事故。
一、事故有关情况
(一)事故单位情况
1.基本情况
白塔区三里厨娘饭店(以下简称三里厨娘饭店),统一社会信用代码92211002MA0X7DBB07,位于辽阳市白塔区三里街68-5号楼民主路160-11号(见图1),建筑面积285.53平方米。饭店由刘言、王婷、王硕和褚洪宝等4人共同经营管理,刘言负责财务和对外联络,王婷负责菜品设计,王硕负责日常经营管理,褚洪宝担任厨师长,共聘有12名员工。

图1三里厨娘饭店位置示意图
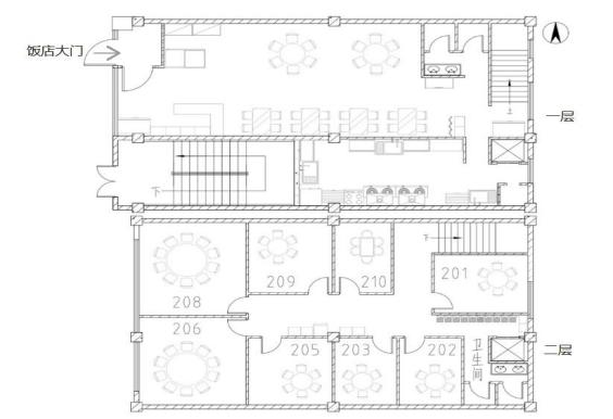
饭店共两层,一层为前台、散台、厨房和卫生间;二层设8个包房和1个卫生间。饭店设有1个直通室外的安全出口(饭店大门)和1部室内楼梯。见图2。

图2一层、二层平面示意图
2.装修改造情况
2022年5月,刘言、王婷、王硕3人共同投资约70万元对饭店进行整体装修改造,包括室内装修改造、外立面装饰和户外广告及招牌设施搭建(以下简称外立面装饰装修)。8月,三里厨娘饭店在未申请办理外立面装饰建设工程规划许可证的情况下,与辽阳市白塔区城市管理综合行政执法队杨旭私下沟通,直接申领施工围挡设施,随后组织室内外装修改造。期间,雇用陈岩组织散工进行室内装修改造;由辽阳市白塔区创易达广告装饰中心负责外立面装饰装修,并明确选用铝塑复合板(以下简称铝塑板)。该铝塑板的芯材为未经阻燃处理的塑料,属于普通型铝塑板,作为外立面装饰装修材料。
三里厨娘饭店外立面整体结构采用镀锌方管框架和铝塑板搭建,南北长9.17米、檐口处宽1.66米,其余部位宽1.20米,高8.59米。外立面北侧一层外墙设有排风机及其管道,为将其遮蔽,采用镀锌方管框架和铝塑板设置成紧贴外墙的竖向空腔,形成竖向排风道,高度与建筑外墙最高点齐平,紧邻饭店二层外窗和一层安全出口,排风道下部北侧设有高0.85米、宽0.67米的带锁检修口小门。见图3。

图3饭店外立面整体结构示意图(单位:毫米)
3.消防设施情况
饭店一层设有1个消火栓、18个喷头和3个感烟探测器;二层设有1个消火栓、14个喷头和4个感烟探测器。2022年装修改造后,7个感烟探测器被全部封闭在吊顶内,二层消火栓被遮挡在包房内。
(二)涉事建筑情况
1.基本情况
涉事建筑为辽阳市城市南部商住区回迁安置楼(温馨家园小区)5号楼裙房(A商业网点),地上共两层,建筑高度9.1米,建筑面积2326.38平方米。见图4。

图4涉事建筑示意图
2.建设情况
涉事建筑由辽阳市城市南部开发建设领导小组办公室(以下简称南部办)开发建设,辽宁金帝建筑设计有限公司负责建筑设计,浙江中南建设集团有限公司为施工总承包单位,辽阳市建华工程建设监理有限公司负责工程监理。
2008年10月,取得原市规划局出具的项目选址意见书。2008年11月,取得建设用地规划许可证。2009年5月,原市规划局出具建设工程规划许可证。2009年6月,原市住建委出具建设工程施工许可证。2010年11月,原市国土资源局决定该宗土地以划拨方式提供。2010年12月,原市国土资源局对该宗土地使用权审查核实,准予登记。2014年11月,通过原市消防局消防验收。2016年2月,经原市住建委实地勘察,该项建设工程符合城乡规划要求,核实合格。2016年12月,原市住建委对该工程竣工验收予以备案。
3.建筑外墙保温工程情况
2008年9月,辽宁金帝建筑设计有限公司完成施工图设计,采用氧指数不应小于30%的阻燃型聚苯乙烯板(EPS)、外贴墙砖保护的设计工艺。2009年2月,浙江中南建设集团有限公司中标后,将5号楼裙房(A商业网点)的外墙保温工程分包给何家奎个人。何家奎从辽阳市太子河区城奥装潢材料厂采购聚苯乙烯保温板进行施工安装。
4.物业管理情况
2011年8月,南部办与原白塔区新华街道办事处(现白塔区南门街道办事处)签订物业管理委托书,将温馨家园小区及所属商业网点的十年物业管理工作委托街道办事处管理,明确2011年至2021年物业费由市政府承担;同月,原新华街道办事处与辽阳汇霖物业有限公司签订物业管理协议,明确由辽阳汇霖物业有限公司负责小区公共设施维护、安全防范、卫生保洁、装饰装修管理等物业服务工作。2021年至火灾发生前,南门街道办事处每年与辽阳汇霖物业有限公司签订物业管理协议,仍由该公司负责小区物业服务工作,物业费由市政府承担。
5.消防设施情况
涉事建筑设有室内消火栓系统、火灾自动报警系统、自动喷水灭火系统、应急照明和疏散指示标志。火灾自动报警系统和消防供水系统由温馨家园小区消防控制室集中控制。
2015年初,温馨家园小区消防管道和消防逆水阀冻坏,消防管网无法正常供水。2017年5月,原新华街道办事处向原市住建委提交了《关于南部回迁楼(温馨家园小区)相关问题的汇报》;6月,原市住建委批复同意使用物业费结余款支付消防设施维修费用,并对逆水阀进行了维修。2018年4月,温馨家园小区地下泵房自来水管线爆裂,消防水泵、电气控制柜被浸泡损坏。2019年9月,市自来水公司将消防水泵和配电柜修复,但因小区消防供水管网不具备供水条件,仅对消防水泵进行了空载、空转测试。2020年2月,原新华街道办事处向市住房城乡建设局书面报告消防设施未保持完好有效问题。2020年7月,市住房城乡建设局向市政府报告小区存在消防设施故障等隐患问题,市政府同意通过盘活国有资产的方式解决小区维修资金来源,但因固定资产盘活未达到预期目标,消防设施一直未得到修复。2023年5月,市政府印发会议纪要,同意以房抵资推进小区维修改造。2024年3月,市住房城乡建设局与辽宁泰安建设集团有限公司签订协议,决定对温馨家园小区消防设施等进行整体维修改造。施工过程中,因对其他设施功能造成影响,施工被迫暂停。至火灾发生前,施工一直未启动。
(三)有关单位和人员情况
辽阳市白塔区创易达广告装饰中心,统一社会信用代码为92211002**********,成立于2014年3月21日,类型为个体工商户,经营者赵龙,经营范围为广告耗材零售;广告牌制作、亮化工程、广告创意设计服务。
辽阳市太子河区城奥装潢材料厂,营业执照注册号为21101**********,成立于2010年1月12日,类型为个体工商户,经营者付丽娜,经营范围为苯板加工。
浙江中南建设集团有限公司,统一社会信用代码为91330108**********,成立于1984年10月9日,类型为其他有限责任公司,法定代表人吴建荣,经营范围为建设工程施工、建设工程设计、住宅室内装饰装修、施工专业作业等。
辽阳建华工程建设监理有限公司,营业执照注册号为21100**********,成立于2000年11月17日,类型为有限责任公司,法定代表人王猛,经营范围为工程建设监理。
辽阳汇霖物业有限公司,统一社会信用代码为91211000**********,成立于2010年12月15日,类型为有限责任公司,法定代表人陈忠东,2012年4月16日取得原市住建委出具的《物业管理企业资质证书(暂定三级)》。
何家奎,男,负责涉事建筑外墙保温工程施工。
陈岩,男,负责组织三里厨娘饭店室内装修改造施工。
(四)事故发生经过
2025年4月29日12时12分,王慧等4名顾客进入饭店就餐。12时15分,王慧走出店门,在门口排风道附近吸烟。12时16分,王慧将未熄灭的烟蒂丢弃到排风道检修口附近北侧地面后,返回饭店。当时,饭店共40人,其中顾客28人,员工12人。
12时22分,一层1名顾客闻到物品烧焦味道,走到饭店门口看到外立面北侧有火,便跑回店内呼喊一同就餐的3名顾客从饭店大门离开。12时24分,一层3名服务员通过大门离开。12时25分,饭店3名后厨员工使用手提式干粉灭火器到饭店外扑救未果,火势迅速蔓延扩大,大门被火封死,未再进入店内。1名服务员、3名后厨员工和1名顾客从一层楼梯下方小窗逃生,1名后厨员工和2名顾客从二层201包房跳窗逃生。其余人员未能及时逃生。
(五)人员伤亡及直接经济损失情况
火灾共造成22人死亡、3人受伤。死亡人员中,一层顾客2人,二层顾客19人,饭店服务员1人。受伤人员为从二层201包房跳窗逃生的1名后厨员工和2名顾客。
依据《火灾损失统计方法》等有关规定,结合专业机构评估情况,火灾直接经济损失共计2536.39万元。
(六)应急处置情况
12时25分,辽阳市消防救援支队指挥中心接到报警。12时37分,首批消防救援力量5车19人抵达现场,迅速部署2个搜救组搜寻被困人员,同时出设2支水枪掩护搜救,并控制火势。12时39分,支队全勤指挥部到场,增援力量陆续到场处置,共计出动22辆消防车、135名指战员。全勤指挥部遵循“救人第一”的指导思想,先后组织增援力量成立6个内攻搜救组,同时增设4个水枪阵地,控制火势。12时43分,明火被扑灭,搜救组继续搜寻被困人员。14时32分,搜救行动结束。
接报火情后,辽宁省委、省政府和辽阳市委、市政府相关领导立即赶赴现场,成立现场指挥部,组织应急、消防、公安、卫健、民政等部门和属地政府协同联动,开展人员搜救、伤员救治、人员转运、群众疏散、现场封控等工作。同时,迅速成立善后工作专班,按照医疗救治、善后安抚两个“一对一”要求,认真稳妥做好医疗救治、事故伤亡人员家属接待及安抚、遇难者身份确认等善后工作。
二、事故原因
经调查询问、现场勘验、视频分析、检验鉴定、模拟实验和专家论证,综合认定起火时间为2025年4月29日12时20分许,起火点为三里厨娘饭店大门旁紧贴外墙设置的铝塑板排风道检修口内地面处,直接原因系饭店顾客王慧丢弃的未熄灭烟蒂,在风势作用下通过紧贴外墙设置的铝塑板排风道下方缝隙滚入检修口,引燃内部堆放的包装纸箱等垃圾,导致饭店外立面装饰装修使用的铝塑板和建筑外墙聚苯乙烯保温板快速燃烧蔓延成灾。
(一)起火原因分析
1.未熄灭烟蒂为引火源。一是监控视频显示,饭店顾客王慧于12时15分走到饭店门口排风道处吸烟,12时16分05秒将未熄灭的烟蒂丢弃到紧邻排风道检修口位置地面处(见图5)。二是监控视频显示,12时22分25秒排风道检修口内出现火光。从扔烟蒂到出现火光时间间隔6分20秒(见图6)。三是经烟蒂丢弃进入排风道实验验证,烟蒂在风力引起的涡流作用下能够通过检修口下方缝隙进入排风道内(见图7)。四是经烟蒂引燃纸箱实验验证,未熄灭的烟蒂能够引燃包装纸箱,并在适当风力的作用下,从阴燃快速转化为明火燃烧。见图8。

2.排除放火、电气故障、燃气燃油、物品自燃、施工作业等因素引发火灾的可能。经公安机关侦查,排除放火嫌疑。火灾发生前,饭店排风机控制空开和门外灯箱控制空开均处于分断状态,现场提取的电气线路残骸经物证鉴定均为火烧熔痕。起火点附近无燃气燃油设施装置和管路。起火点处未堆放自燃物品、无自燃物品燃烧痕迹。起火当日饭店附近区域没有施工行为。经查看视频,起火当日无人打开排风道检修口,也未见其他火源。
(二)蔓延扩大原因分析
1.外立面装饰装修使用普通型铝塑板快速燃烧,致使火势迅速蔓延扩大。饭店外立面装饰装修本应按规定选用建筑幕墙用铝塑复合板,为节约成本却选用普通型铝塑复合板,其芯材为未经阻燃处理的塑料,易点燃且无自熄性,燃烧速度快并产生熔融滴落;铝塑板表面金属铝材的熔点为660℃,高温明火作用下会发生剧烈燃烧并放热。火灾发生后,一层门口区域和二层窗户周围大量铝塑板被快速引燃,火焰及烟气封堵饭店大门,同时突破二层包房外窗向二层内部蔓延。视频显示,从排风道检修口门缝出现火光到铝塑板被烧穿用时2分23秒,再到整个外立面形成立体燃烧仅用时2分9秒;铝塑板在剧烈燃烧下发生火花喷溅现象,地面熔融滴落后形成大面积流淌火,燃烧现象与模拟实验情况基本相符。
2.外墙保温系统采用的聚苯乙烯保温板快速燃烧,加剧了火势蔓延扩大。饭店外立面装修改造时,钢架采用锚固的方式固定在外墙上,穿透了原有外墙面砖和聚苯乙烯保温板,导致局部保温板直接外露。火灾发生后,在高温作用下聚苯乙烯保温板快速熔融,部分外墙面砖炸裂或脱落,保温板被明火引燃并沿内部空腔迅速蔓延,同时产生大量高温浓烟。
3.外立面装饰装修包裹烟道形成烟囱效应,致使火势迅速蔓延至二层形成立体燃烧。饭店外立面装饰装修时使用铝塑板包裹排风管道形成竖向通道,加之火灾当日风力强劲(阵风6级),烟囱效应明显,火势迅速向上蔓延扩大形成立体燃烧,并伴有大量浓烟。部分烟气通过外立面内部空腔与饭店一层吊顶连通部位进入一层后,沿店内楼梯向二层扩散,封堵人员疏散通道。视频显示,从排风道检修口门缝出现火光到排风道顶部冒出烟气仅用时55秒。通过大尺寸模拟实验验证,在烟囱效应作用下,火势从下向上蔓延速度极快,从排风道底部出现明火至顶部温度达到1400℃,只需1分56秒。
4.共用消防设施瘫痪,导致自动喷水灭火系统未能阻止火势向室内蔓延。温馨家园小区共用消防设施因消防水泵及配电设施浸泡损坏、缺少日常维护管理等问题,长期处于瘫痪状态。火灾发生时,饭店顶棚下布置的洒水喷头热敏玻璃球在高温作用下破碎,但因消防供水管网无水,导致饭店自动喷水灭火系统未能发挥作用。此外,因小区火灾自动报警系统停用,且饭店装修改造时将原有感烟探测器封闭在吊顶内,导致火灾发生时没有报警信号发出。
(三)造成人员伤亡原因分析
1.燃烧产物毒性大,短期致人死亡。经司法鉴定,遇难人员死亡主要原因为一氧化碳及氰化物中毒。经检测,起火场所使用的铝塑板、聚苯乙烯保温板、装饰墙板、软包餐椅等燃烧的产物中含有一氧化碳、氰化氢、氮氧化物等大量有毒物质。
2.饭店未组织有效疏散,致使大量人员被困。饭店未结合实际制定灭火应急疏散预案,从未组织员工开展疏散逃生演练。火灾发生后,二层员工听到顾客反映饭店内有烟味,没有及时采取有效应对措施;得知火情后,大部分员工只顾自发扑救或自行逃生,没有第一时间通知顾客并组织有效疏散。
3.逃生时间短,被困人员逃生困难。从饭店员工得知火情到大火封门,用时仅1分28秒。店内人员对火势的迅猛发展始料不及,导致在闻到烟味和得知火情后,有的顾客未在第一时间选择尽快逃生,有的顾客为寻找同伴错失最佳逃生时机;加之有的顾客对陌生场所疏散逃生路线不熟悉,找不到安全出口,有毒浓烟弥漫又影响了逃生视线和逃生速度,特别是被困人员年龄普遍偏大,60岁以上人员超过50%,个别人员行动不便,逃生困难,导致人员伤亡扩大。
(四)相关检测及模拟实验情况
1.检测鉴定情况
经国家建筑工程质量检验检测中心检测,涉事建筑部分外墙聚苯乙烯保温板氧指数低于30%。
经应急管理部沈阳消防研究所检测,现场提取聚苯乙烯保温板、软包餐椅泡沫材料、装饰墙板等检材的燃烧产物中含有一氧化碳、氰化氢、氯化氢、苯、甲苯等多种有毒物质。
2.尸体检验鉴定情况
经司法鉴定,22名遇难人员中,一氧化碳和氰化物中毒死亡18人;一氧化碳中毒并烧伤致死4人。
3.模拟实验情况
通过局部模型燃烧实验、大尺寸模型燃烧实验,验证火势发生、发展和蔓延扩大现象与实际火场视频监控记录的现场现象基本吻合,实验核心区域痕迹特征与火灾现场痕迹特征基本相符。
三、事故涉及有关方面的主要责任
(一)涉事生产经营单位和个人存在的主要问题
1.三里厨娘饭店
未申请办理外立面装饰工程规划许可,擅自改变建筑外观。外立面装饰装修采用普通型铝塑板,且超出经营场所原有门窗界线。内部装修改造未经具有相应资质的设计单位进行设计,擅自改动、遮挡消防设施,将一、二层原卫生间外窗分别用砖进行部分封堵,改变承重结构将楼板开孔增设传菜设备。未申请办理建设工程消防验收备案和公众聚集场所营业前消防安全检查。日常经营产生的部分可燃垃圾,随意堆放在门口排风道内。火灾事故发生后现场工作人员未及时有效组织疏散。
2.装修改造单位及个人
(1)创易达广告
负责搭建的三里厨娘饭店外立面占用公共场地。
(2)陈岩
无资质承揽三里厨娘饭店室内装修改造工程,无设计方案擅自组织施工。
3.汇霖物业
承接物业时未取得相应资质证书,从事物业管理的人员未取得相应职业资格证书;未依法对物业共用部位、共用设施设备进行查验。进驻后,未对小区共用消防设施进行定期检测、维护保养,未有效组织开展防火巡查、检查,及时消除火灾隐患。未及时制止商户装修过程中破坏建筑结构、违规扩建、封堵外窗、遮挡消防设施等行为。
4.建筑外墙保温工程相关单位
(1)浙江中南建设集团有限公司
未履行总承包合同约定职责,违规将涉事建筑外墙保温工程发包给个人;对分包工程监督不力,未发现聚苯乙烯外墙保温材料以次充好、蒙混抽检等问题。
(2)何家奎
违规以个人名义承揽外墙保温工程;未按设计图纸进行施工;伙同辽阳市太子河区城奥装潢材料厂通过添加石墨颗粒方式,使非阻燃产品的外观、重量与合格产品相似,以次充好、蒙混抽检。
(3)辽阳市太子河区城奥装潢材料厂
与何家奎串通,生产、销售不合格外墙保温材料用于涉事建筑外墙保温工程。
(4)辽阳建华工程建设监理有限公司
在负责涉事建筑外墙保温工程监理期间,未按有关规定对入场的外墙保温材料进行抽检。
(二)住房和城乡建设部门
1.白塔区住房和城乡建设局
对汇霖物业承接温馨家园小区物业服务期间,未履行物业共用部位、共用设施设备查验等职责监管缺失,对物业公司没有维护共用消防设施情况督促指导不力;2025年全市住宅小区消防安全隐患大排查大整治工作中,未按职责分工牵头制定行动方案,对辖区物业服务企业自查情况复查率未达到100%。未及时查处三里厨娘饭店未按规定办理装修改造工程消防验收备案等违法违规行为;对城市市容和环境卫生管理等监管工作指导不力,对饭店不按规定排放垃圾等行为未予制止;对区城市管理综合行政执法部门承担的查处外立面装饰装修违法违规行为等工作指导不力。
2.辽阳市住房和城乡建设局
涉事建筑建设期间,作为建设单位(南部办)主要负责人所在单位和建设行政主管部门,对工程质量把关不严,导致工程违规肢解发包、建筑外墙保温材料“以次充好”等问题未得到及时查处。2014年代管南部办后,对物业公司和街道办事处多次报告的小区共用消防设施瘫痪等问题推动整改不力。对小区物业监管流于形式,在2025年全市住宅小区消防安全隐患大排查大整治工作中,对物业自查情况的抽查率低于方案要求的30%;对白塔区住房和城乡建设局的装修工程质量监督管理、城市市容和环境卫生管理、消防验收备案抽查以及物业管理等工作指导缺位;对白塔区城市管理综合行政执法部门查处外立面装饰装修违法违规行为指导缺位。
3.辽宁省住房和城乡建设厅
未及时制定其他建设工程消防验收备案分类管理配套文件;对辽阳市其他建设工程消防验收备案及抽查工作开展情况指导不力。
(三)城市管理综合行政执法部门
1.白塔区城市管理综合行政执法队
违规允许三里厨娘饭店在未办理建设工程规划许可证情况下擅自改变饭店外立面、占用公共场地进行搭建;放任三里厨娘饭店超出原有门窗界线开展经营活动;未依法查处三里厨娘饭店装修改造工程未办理消防验收备案的行为;未对城市市容和环境卫生实施有效管理,对随意堆放垃圾等行为管控不力。
2.白塔区城市管理综合行政执法局
委托城市管理综合行政执法队承担行政执法事项,对其未及时查处三里厨娘饭店未办理建设工程消防验收备案、未经规划主管部门批准违反标准搭建外立面等问题失控漏管。
(四)自然资源部门
1.辽阳市自然资源局
未对外立面规划许可实施情况进行检查,未发现三里厨娘未经规划许可实施饭店外立面装饰装修;未会同城市管理综合执法部门建立审批信息共享制度和有效的执法联动机制,对三里厨娘饭店超出墙面外轮廓线设置外立面的违法行为进行查处。
(五)商务部门
1.白塔区商务局
落实“管行业必须管安全”要求不到位,在指导、督促餐饮行业消防安全管理工作中擅自缩小行业管理范围,只检查辖区内大型场所,把大量中小餐饮场所排除在行业管理范围之外。督促餐饮单位落实消防安全责任不严不实,实施消防安全相关专项整治、重大隐患排查治理等任务,以会议传达、转发文件或通过微信群部署给乡镇(街道)为主,对各地报送情况汇总后未通过现场抽查等方式进行核实督办。2024年度汇总台账中显示三里厨娘饭店存在“无燃气安全警示牌和生产管理制度及消防安全责任制问题”,至事故发生时仍未整改。
2.辽阳市商务局
对区商务局贯彻落实“管行业必须管安全”要求督导缺位,未及时发现并纠正其擅自缩小行业管理范围的做法;在推动基层落实消防安全相关专项整治、重大隐患排查治理等重点任务过程中,缺乏对白塔区商务局及乡镇(街道)实际执行情况的有效跟踪和考核监督;对基层排查发现三里厨娘饭店等餐饮场所存在的问题,未跟踪督促区商务局采取有效措施闭环处置。
(六)公安部门
1.辽阳市公安局白塔分局新华派出所
未有效履行对三里厨娘饭店及温馨家园小区物业服务企业消防安全监督检查职责。未发现三里厨娘饭店未办理装修改造工程消防验收备案、营业前消防安全检查手续,未督促制定应急预案并组织开展演练;对温馨家园小区物业服务企业履行消防安全职责情况检查不到位,督促整改小区消防问题未闭环。
2.辽阳市公安局白塔分局
未认真履行对辖区派出所消防监督工作的指导职责,未及时发现派出所日常消防安全监督检查不到位、督促整改未闭环等问题,未将派出所日常消防监督工作纳入年度考评。
(七)消防部门
1.白塔区消防救援大队
对温馨家园小区因室内消火栓无水下达责令改正通知书后,未落实督促整改闭环管理。未及时查处三里厨娘饭店未申请营业前消防安全检查违法行为。未有效实现跨部门执法协作和信息互通,对相关部门及属地街道社区的消防安全集中除患攻坚大整治专项行动跟踪督导不到位,对派出所、街道日常消防监督工作指导不力。
2.辽阳市消防救援支队
对区消防救援大队实施的公众聚集场所营业前消防安全检查工作监督指导不力,未推动建立跨部门执法协作机制,对消防安全集中除患攻坚大整治专项行动跟踪督导不到位。
3.辽宁省消防救援总队
未有效督促各地建立跨部门执法协作机制,对辽阳市消防救援支队监督指导大队实施公众聚集场所营业前消防安全检查工作不力的情况失察。
(八)地方党委、政府
1.南门街道党工委、办事处
未建立消防安全组织,突发事件应急救援预案没有操作性,未组织对社区网格员进行消防安全教育培训。先后接受南部办、市住房城乡建设局委托,作为温馨家园小区的物业选择方和管理方,未有效履行小区物业管理工作,未有效协调指导物业公司对小区消防设施进行维护管理,及时制止三里厨娘饭店装修过程中破坏建筑结构、违规扩建、封堵外窗、遮挡消防设施等违法行为。
2.白塔区委、区政府
贯彻落实习近平总书记关于安全生产重要论述不到位,对辖区2024年以来火灾事故多发问题没有引起重视,未及时组织研判辖区内消防安全风险。组织开展“打非治违”等专项行动质效低,对区住房城乡建设局未严格履行装修改造工程消防验收备案等职责失察失管;未有效督促区城市管理综合行政执法局依法查处外立面装饰装修等违法行为;对区商务局擅自缩小行业管理范围等问题失察失管;对区公安分局履行小餐饮场所日常消防监督检查职责不到位等问题失察失管;未督促区消防救援大队依法查处小餐饮场所未办理营业前消防安全检查等违法行为。
3.辽阳市委、市政府
贯彻落实习近平总书记关于安全生产重要论述不到位,统筹发展和安全没有落到实处。对辽阳市城市南部开发建设领导小组推进涉事建筑建设期间存在的诸多违法违规问题失察。对市住房城乡建设局报告的温馨家园小区隐患问题未采取有效措施推动整改,致使隐患长期存在。对市自然资源局实施外立面规划许可不力等问题失察失管;对市商务局落实商贸行业消防安全指导督促责任不到位等问题失察失管;未有效推动市消防救援支队建立跨部门执法协作机制。对白塔区组织开展“打非治违”专项行动质效低等问题失察。全市消防站数量与《城市消防站建设标准》相比还有差距。
四、对有关责任人员及责任单位的处理建议
(一)已被司法机关采取强制措施及移送人员
1.刘言,女,对事故负有责任,已被检察机关批捕。
2.王婷,女,对事故负有责任,已被检察机关批捕。
3.王硕,男,对事故负有责任,已被检察机关批捕。
4.褚洪宝,男,对事故负有责任,已被检察机关批捕。
5.何家奎,男,对事故负有责任,移送司法机关依法处理。
6.付丽娜,女,辽阳市太子河区城奥装潢材料厂经营者,涉嫌提供伪劣产品,建议将违法线索移送司法机关处理。
7.付宏伟,男,辽阳市太子河城奥装潢材料厂生产负责人,涉嫌提供伪劣产品,建议将违法线索移送司法机关处理。
8.张伟,男,时任辽阳市建华工程建设监理有限公司土建监理工程师,负责涉事建筑外墙保温工程的监理工作,对事故负有责任,移送司法机关依法处理。
9.王慧,男,因在事故中死亡,不予追究刑事责任。
(二)对有关公职人员的处理建议
对于在事故调查过程中发现的地方党委政府及有关部门的公职人员履职方面的问题线索及相关材料,建议移交纪委监委
审查调查组依法依规处理。
(三)对事故有关责任单位和责任人员的行政处罚建议
1.三里厨娘饭店及其经营者刘言、王婷、王硕、褚洪宝
在装修改造及经营中违反《中华人民共和国安全生产法》《中华人民共和国消防法》《建设工程质量管理条例》等有关规定,对事故发生负有责任,建议辽阳市应急管理部门按照《中华人民共和国安全生产法》的有关规定依法处理;按照《生产安全事故报告和调查处理条例》规定,辽阳市市场监督管理部门依法依规吊销三里厨娘饭店的营业执照。
2.三里厨娘饭店前台管理人员夏爽
建议由辽阳市消防部门按照《中华人民共和国消防法》的有关规定依法处理。
3.辽阳市白塔区创易达广告装饰中心及其经营者赵龙
建议辽阳市城市市容和环境卫生行政主管部门按照《辽阳市城市市容和环境卫生管理条例》的有关规定依法处理。
4.汇霖物业
小区消防设施、器材未保持完好有效,停用消防设施、器材,建议由辽阳市消防部门按照《中华人民共和国消防法》的有关规定依法处理。
5.辽阳市太子河区城奥装潢材料厂及其法定代表人付丽娜、生产负责人付宏伟
建议由辽阳市市场监督管理部门按照《中华人民共和国产品质量法》有关规定依法处理。
6.陈岩
建议由辽阳市住建部门按照《建设工程质量管理条例》的有关规定依法处理。
(四)其他处理意见
1.对调查中发现的温馨家园小区在开发建设过程中建设、设计、施工、监理等相关企业、人员和负有监督管理职责人员存在的违法违规问题,建议由辽阳市组织有关部门依法依规另案处理。
2.鉴于辽阳市和白塔区两级党委、政府对事故的发生负有领导责任,应当深刻反思、改进工作,同时为了警示各有关方面特别是地方各级党委、政府更加深刻领会习近平总书记重要指示批示精神,统筹好发展和安全,坚决防范和遏制重大事故发生,确保人民生命和财产安全,建议白塔区委、区政府分别向辽阳市委、市政府作出深刻检查;建议辽阳市委、市政府分别向省委、省政府作出深刻检查。
五、事故主要教训
(一)以人为本生命至上的理念树得不牢。习近平总书记对安全生产工作多次作出重要指示批示,强调坚持人民至上、生命至上,以“时时放心不下”的责任感,抓实抓细工作落实,盯紧苗头隐患,全面排查风险,坚决防范遏制重特大事故发生。小餐饮场所数量庞大、分布广泛,安全基础薄弱,从业人员安全素质参差不齐,风险点多面广、防范压力大。特别是近年来先后发生宁夏银川富洋烧烤店“6·21”和吉林长春小油饼百姓餐厅“9·28”等重特大事故,造成重大人员伤亡,严重冲击人民群众幸福感、安全感。辽阳市、白塔区先后组织过多轮次的安全专项整治,但从事故暴露出的问题看,整治质量和效果未达预期,问题隐患仍然大量存在,特别是事发小区共用消防设施瘫痪问题,从接报到事故发生,历时近十年,仍未推动有效整改;暴露出属地党委政府和有关部门吸取事故教训不深刻,以人为本、生命至上的理念树得不牢,防范化解重大安全风险的意识不强、能力不足,防控链条环环失守、层层落空,小隐患、小问题逐步累积,最终叠加导致重大事故发生。
(二)生产经营单位安全生产主体责任不落实。饭店经营者无视安全法规,未经审批任性装修、野蛮施工,为节约成本违规选用以普通塑料为芯材的铝塑板进行外立面装饰装修,室内装修擅自改变原有建筑结构并将全部感烟探测器封闭在吊顶内;风险意识不强,长期在违建外立面空腔内堆放可燃垃圾;既未制定应急疏散预案也未组织消防演练,致使大部分员工面对突发情况不知所措,未有效组织顾客疏散。外墙保温施工方串通生产销售单位,使用非阻燃聚苯乙烯保温板以次充好、蒙混抽检。监理单位未按规定进行抽检,现场监理流于形式。物业公司“只收费、不管理”,未按规定对小区共用消防设施进行维保检测,对商业网点违规装修改造、堆放垃圾等行为不管理、不制止,致使事故隐患长期存在。企业只顾发展、不管安全,主体责任缺位,最终隐患演变成事故。
(三)行业部门安全生产监管存在盲区。住建部门作为政府指定的回迁工程牵头管理单位,同时也是建设行政主管部门,源头管控失守,工程建设期间对建设项目、监理单位等疏于监管,对外墙保温工程把关不严,导致保温材料“以次充好”蒙混过关;对基层报送的小区共用消防设施瘫痪问题,长期拖而不决,推动整改不力;对限额以下和其他建设工程如何有效实施监管,配套制度建设滞后,只管合法、不管违法;城市管理综合行政执法部门不作为、乱作为,对普遍存在的应办未办消防验收备案建设工程、群众随意堆放垃圾等违法违规行为执法不严;甚至默许或纵容违法行为存在。商务部门作为行业主管部门,对主管行业单位数量大、人员少的客观事实强调多,但从主观上借助信息化手段提高管理效率思考少,落实上级部署打折扣,擅自缩小行业管理范围,只检查辖区内大型场所,把大量中小餐饮场所排除在行业管理范围之外。消防部门发挥消防安全综合监管作用不强,对属地党委政府、相关部门等落实消防安全责任制推动不力、效果不佳;对小型公众聚集场所未办理营业前消防安全检查管控不严。住建、自然资源、商务、消防等部门不同程度存在监管范围“自我设限”“只管合法、不管非法”等问题,限额以下工程建筑安全、装饰规划许可、营业前消防安全检查等普遍处于“不报不管”状态,大量小微场所游离于行业管理和监管之外。
(四)基层安全综合治理短板亟待补齐。目前,乡镇(街道)履职事项清单中已包含应急管理及消防工作,但现有人员力量配置与繁重的管理任务严重不匹配;相关人员因身份不明确、权责不对等,发现问题和解决问题的意愿不强烈、能力偏低,“人少质弱”情况比较突出。如商务部门把大量商贸行业的小微场所日常管理工作“留”给乡镇(街道),这些场所有不少达不到“九小场所”标准,消防工作也需由乡镇(街道)来监管,导致基层“小马拉大车”,“疲于应付”,监管不到位,“小场所大事故”时有发生。乡镇(街道)“吹哨”、部门“报到”机制衔接不紧,排查、监管、整改责任边界不清,部门间推诿扯皮现象时有发生,责任链条拧得不紧,有的还存在断点,大大影响监管效能。基础设施建设还存在短板,如辽阳市建成区面积105.65平方千米,按照《城市消防站建设标准》,中心城区应建设消防站18个,目前缺口7个,部分消防站辖区保护面积过大,影响救援力量到场时间。基层监管力量不足、能力不强,基础设施缺乏,严重影响基层安全治理质效。
(五)公众参与社会共治上差距明显。公众守法自觉性还需提升,乱扔烟蒂现象仍然比较普遍,由此引发火灾较为突出。据统计,辽宁省前三季度因吸烟引发火灾占总数的20.1%。公众风险意识不强、安全素养不高,不能有效发现公共场所存在的事故隐患,主动查看疏散通道、安全出口的避险意识不强,一旦遇到险情,容易惊慌失措。本次火灾中,饭店内共有28名顾客,大部分顾客在火灾初始对风险估计不足,错失最佳逃生时机,烟气弥漫后无法逃生,最终导致其中21人死亡,2人受伤,仅5人顺利逃生。公众参与社会治理的意愿不强,对身边存在的非法违法行为、事故隐患等举报、报告的自觉性不高,如涉事饭店搭建的外立面尺寸明显超出界线,占用公共场地近11平方米,但营业以来无人向有关部门举报。公众安全意识和应急处置能力不足,“人人讲安全、个个会应急”氛围还不够浓厚。
六、事故防范整改措施建议
(一)牢固树立安全发展理念,坚决扛牢防范化解重大安全风险政治责任。各级党委、政府,各有关部门和单位要深入学习贯彻习近平总书记关于安全生产重要论述精神,更好统筹发展和安全两件大事,切实增强抓好安全生产和消防工作的责任感、紧迫感和使命感,扎实推动安全治理模式向事前预防转型,多做未雨绸缪、防微杜渐之功,少做亡羊补牢、被动纠错之事。要深入贯彻落实《地方党政领导干部安全生产责任制规定》《消防安全责任制实施办法》,积极推动将安全生产和消防工作纳入高质量发展、平安建设、精神文明创建等考核体系,压紧压实各方安全责任,持续推进安全生产治本攻坚三年行动,以人为本提素质、本质安全换设备、双重预防强管理,有效防范化解重大安全风险,动态清零重大事故隐患,坚决遏制重特大事故发生,切实扛起“促一方发展、保一方平安”政治责任。
(二)完善安全管理制度机制,压紧压实单位安全生产主体责任。住建部门要加快出台限额以下小型工程施工安全管理相关规定,制定其他建设工程分类管理目录清单,坚决堵塞建设工程安全监督管理漏洞。同时,各部门要加强相关法律法规标准规范宣贯培训,抓好重大事故隐患判定标准实施,加强风险研判,制定有针对性管控措施。定期组织对本行业领域重大安全风险进行研判会商,及时组织制定有针对性的风险管控措施,及时印发本行业领域贯彻执行。要深刻汲取本行业领域典型事故教训,加强突出问题专项整治,深入分析制约安全发展的深层次问题,研提治本之策,集中开展突出问题的专项整治。辽阳市、白塔区要开展市容市貌和环境卫生专项整治,重点对外立面违法改造扩建、以普通塑料为芯材的铝塑板滥用等问题进行治理。加强监管执法,警示曝光,压实企业主体责任,要深刻理解国务院关于规范涉企执法的有关文件精神,对安全生产等群众生命健康密切相关的领域,坚持最严标准依法监管;严格实施公众聚集场所营业前消防安全检查,坚决打击各类消防违法行为,公开曝光典型案例,形成震慑效应。
(三)汇聚行业监管合力,提升部门协同管理效能。各级应急管理部门、防部门要充分发挥安全生产、消防安全综合监管职能,认真收集梳理辖区内各有关部门履行安全生产、消防安全职责过程中存在的问题,对职责交叉、模糊的行业领域,通过明责确责工作机制进一步厘清职责边界。自然资源部门要明确小餐饮场所外立面装饰装修审批要求,把装饰装修材料燃烧性能纳入管理范围,明确小餐饮场所外立面禁止使用易燃、可燃材料装饰装修。要进一步完善综合(协同)监管工作机制,实现监管协同发力。自然资源部门与城管执法部门要建立外立面装饰装修审批、执法等高效衔接机制,畅通互通渠道,解决审批与日常监管脱节问题;消防部门要会同住建、公安、应急、商务等部门建立执法协作和信息共享机制,开展常态化联合治理;行业主管部门要加强与消防、住建、市场等部门协作,建立相关行业领域综合监管机制,完善监管对象数据库,打破部门间数据壁垒,全面实现审批、执法、日常监管等信息共享。
(四)夯实基层治理根基,切实提升安全防范和应急处置能力。结合制定“十五五”规划契机,补齐历史欠账,科学规划消防队站建设,建强基层监管队伍;要深化落实辽宁省政府《关于全面推进政府专职消防队伍建设发展的实施意见》,推进“一队一站”建设,填补乡镇(街道)专业消防力量空白。要认真贯彻落实《关于进一步提升基层应急管理能力的意见》,健全完善乡镇(街道)吹哨、部门报到等工作机制,进一步厘清排查、监管、督促整改等工作责任。要探索运用大数据、人工智能等技术手段,研究一批务实管用的物防技防措施,切实提升风险监测预警水平。要在小餐饮场所推广“一键报警”紧急疏散模式,鼓励增设消防软管卷盘等简易消防设施。积极引入社会力量,推行安全生产责任险、火灾公众责任险等险种,引入市场机制分担风险。支持物业单位、行业协会、志愿者组织参与日常巡查和初期突发事件处置,推动形成“人人有责、人人尽责”的安全共同体。鼓励第三方机构提供安全技术服务,构建以企业自主管理为基础、社会广泛参与、政府精准监管的新型治理体系,推动安全发展、高质量发展。
(五)织密宣传培训网络,增强自防自救综合能力。要强化对各级党委政府负责人统筹发展和安全理念的教育培训,牢固树立“生命至上”安全理念;推动将消防安全纳入义务教育、普法教育、国民安全教育、科普教育和农业生产技术培训、农民务工技能培训重要内容。要弘扬安全文化,深化公共安全教育,鼓励群众主动发现举报风险隐患,并按照规定落实奖励,筑起“人人懂安全、时时为安全、事事保安全、处处要安全”的思想防线。要加大公众宣传力度,盯住关键人、重点人,持续加强公共场所从业人员的安全教育,把安全责任落实到每个岗位、每名员工,将会报火警、会扑救初起火灾、会组织疏散和自救逃生作为公共场所必修课,严格落实岗前培训和全员轮训制度,提升“早发现、早报警、早扑救、早疏散”能力。